Curtain Wall

Stick Curtain Wall System:

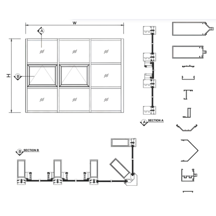
Rainbow Aluminium  offers various aluminium curtain wall systems primarily used for the external walls of high-rise buildings. The aluminium frame is typically filled with glass, which provides an architecturally pleasing building, daylighting, and environmental control. The Rainbow Aluminium stick curtain wall system was developed through extensive performance, material, and structural testing. It introduces a groundbreaking overlapping design. A triangular load-bearing structure ensures a highly stable connection, providing superior structural reliability. The stick curtain wall system features a serialized, modular, and universal design.

Unitized Curtain Wall System:

Our unitized curtain wall boasts a sleek, elegant design with a slender and transparent aesthetic. It integrates cutting-edge technology, outstanding performance, reliable quality, and energy-efficient, eco-friendly solutions. A curtain wall is an independent structural system that consists of aluminum profiles, glass, installation accessories, and other components. Our curtain wall profiles are in-house, custom-made, with various dimensions, cross-sectional shapes, etc. In addition, we provide on-site installation services to domestic and international customers.

Curtain Wall
Curtain Wall
previous arrow
next arrow
Curtain Wall
Curtain Wall
Curtain Wall
Curtain Wall
Curtain Wall
Curtain Wall
Curtain Wall
Curtain Wall
Curtain Wall
Curtain Wall
previous arrow
next arrow
Shadow

Product data

Product Curtain Wall
Profile Materials
6063 – T5 Aluminium Alloy
Surface Treatment
Anodized, Powder-coated, Electrophoresis, Wood Grain & PVDF coating
Type of Profile
Thermal Break and Non- Thermal Break
Colour
Customized Colour
Size
Customized Size and Design
Glass Type
Tinted, Laminated, Reflective, Tempered, Double Glass & Low- Eglass
Hardware
Kinlong or Similar
Application
Residential, Commercial, and High-rise Building

Inquiry Form